Closed by RE/MAX Tru

Property Description

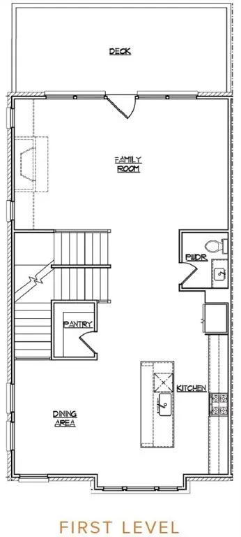
The Ivey plan built by Heatherland Homes. END UNIT! This intimate community is just minutes to shopping, dining, Buckhead, the Battery, downtown Roswell and GA 400. Enter on the terrace level that features a full guest suite. The main living space offers a spacious open concept floorplan with a well equipped kitchen including Whirlpool appliances, large island with extra seating, walk in pantry, and views to dining and living rooms. The third floor features an inviting primary suite and spa like bathroom. The Ivey floorplan features two additional bedrooms on thethird floor. Durable wide plank floors, 9’ceilings, framless shower enclosures are just a few features this community has to offer. Great value for new construction in Sandy Springs! Schedule a private tour today! Ready Summer 2022. *Secondary photos are file photos*

Features
: No
: Central, Electric
: Central Air, Ceiling Fan(s)
: No
: No
: Other
: Deck
: No
: Dishwasher, Disposal, Microwave, Electric Water Heater, Electric Range
: Homeowners Assoc, Near Schools, Near Shopping, Near Trails/greenway
: 110 Volts
: Other
: No
: Hardwood, Ceramic Tile, Carpet
2
: Entrance Foyer, Walk-in Closet(s), High Ceilings 9 Ft Upper, High Ceilings 9 Ft Main
: Laundry Room
: Corner Lot, Other, Level
: Driveway, Garage, Level Driveway
: Composition
: Split Bedroom Plan, Roommate Floor Plan
: Seats 12+, Open Concept
: Double Vanity, Shower Only
: No
: Public Sewer
: No
: Cable Available, Electricity Available, Phone Available, Underground Utilities, Water Available, Sewer Available
: No
Location Details
US
GA
Fulton - GA
Sandy Springs
30328
377 Clark Crossing
0
W85° 31' 33.1''
N33° 47' 0.3''
Travel North on Roswell Road, cross Abernathy Road, travel approx. 0.5 mile to The Park at Sandy Springs on the left.
Additional Details
RE/MAX Tru
: Traditional, Townhouse
$250
Monthly
: Maintenance Grounds
: Brick 3 Sides
Spalding Drive
Ridgeview Charter
Riverwood International Charter
: No
: Three Or More
: No
: No
: New Construction
: Other
: No
$1
2020
: Public
17 0073 LL4405
$599,900
$599,900

377 Clark Crossing

377 Clark Crossing, Sandy Springs, Georgia 30328

4 Bedrooms
3 Bathrooms
2,357 Sqft
$599,900
Listing ID #6964162
Basic Details
Property Type : Residential
Listing Type : Sold
Listing ID : 6964162
Price : $599,900
Bedrooms : 4
Bathrooms : 3
Half Bathrooms : 1
Square Footage : 2,357 Sqft
Year Built : 2021
Status : Closed
Property SubType : Townhouse
CloseDate : 03/31/2023
Agent info
Marci Robinson
Hirsh Real Estate- SandySprings.com
Contact Agent