Closed by Atlanta Fine Homes Sotheby's International

Property Description

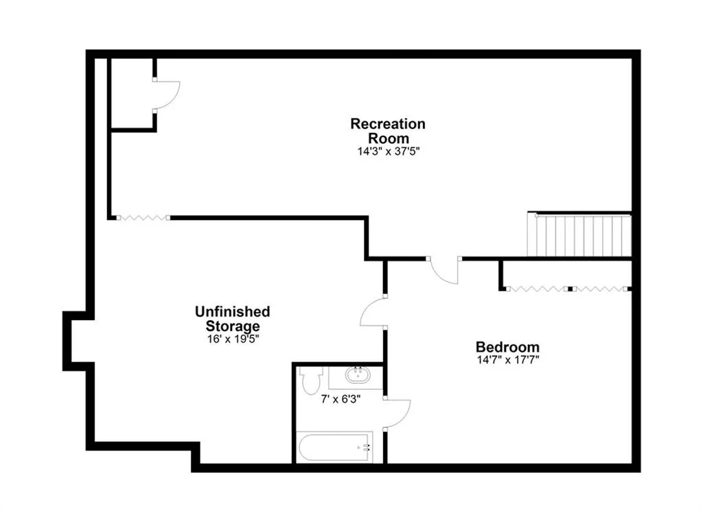
If you believe that your home should be your sanctuary, look no further! Nestled on a large, private lot, a sweeping driveway leads to this charming Cape Cod that epitomizes laid-back-luxury living. A perfect blend of sophisticated style and comfort combined with ample indoor and outdoor entertainment space makes this sprawling home ideal for creating lasting memories with family and friends. Welcome guests through double French glass entry doors into a bright and airy foyer before ushering them into an impressive vaulted living room featuring floor-to-ceiling windows and a cozy fireplace. A spacious separate dining room adjoins the living room to the thoughtfully renovated kitchen where day-to-day cooking is a joy and entertaining a breeze. This cook’s paradise features a center island with room for four stools, quartzite countertops, stainless steel appliances including double ovens, gas cooktop and built-in microwave, as well as a breakfast room with unobstructed views of the spectacular pool. Built-in lockers, laundry, and half bath comprise the ideally situated mudroom providing organization and convenience whether you are coming in from the garage or the pool. Elegance and comfort again combine to create an inviting ambiance in the vaulted family room which is punctuated by a stone fireplace with rustic beam mantle and a bay window offering additional views of the sparkling pool and flooding this space with natural light. The primary suite is a serene retreat that opens directly onto the pool deck, inviting you to start your day with a refreshing dip or unwind with a poolside cocktail. The large ensuite bathroom offers a spa-like experience including double vanity, a frameless shower and tons of storage while a custom closet system has turned one of the secondary bedrooms into a jaw-dropping boutique-style closet. The daylight-finished basement expands the flexibility of this home, allowing you to cater to every family member by offering versatility for recreation and hobbies or for creating a private suite for an inlaw or nanny. For those who require a dedicated work space, the private office above the garage provides a quiet refuge from the hustle and bustle of the main part of the house, fostering productivity without sacrificing convenience. But the heart of this home may very well be found outside. All you have to do is step onto the expansive pool deck to discover the true essence of outdoor living where you can choose to work on your tan, host lively gatherings or simply bask in the tranquility of this private oasis. The heated, salt-water pool is served by new equipment and a removable pool fence offers peace of mind for the safety of your children or even pets. A charming gazebo provides the perfect shaded haven for relaxation or intimate gatherings. This home is more than just a living space; it’s a lifestyle. With its impressive features, thoughtful design, and beautiful outdoor amenities, 140 River Court Parkway presents a unique opportunity to experience luxury, comfort and privacy all in one. And because of its incredible location, you can enjoy all of this within minutes of multiple world-class shopping, dining and entertainment destinations such as Sandy Springs City Center, Perimeter Center or Downtown Roswell as well as access to a multitude of parks and trails like the Abernathy Greenway and the Chattahoochee National Recreation Area. Welcome home to Riverside Estates.

Features
: Gunite, Heated, In Ground
: Central, Forced Air, Natural Gas
: Zoned, Central Air, Ceiling Fan(s)
: Daylight, Finished, Finished Bath, Interior Entry
: Fenced, Wood, Back Yard, Privacy
: Pool, Trees/woods
: Patio
: No
: Dishwasher, Disposal, Microwave, Refrigerator, Self Cleaning Oven, Electric Oven, Double Oven, Gas Cooktop, Gas Water Heater, Energy Star Qualified Appliances, Trash Compactor
: Street Lights, Near Schools, Near Shopping, Near Trails/greenway
: 110 Volts, 220 Volts In Laundry
: Private Front Entry, Private Yard, Garden, Rain Gutters
: Gas Log, Gas Starter, Living Room, Family Room
2
: Hardwood
2
: Entrance Foyer, High Speed Internet, Walk-in Closet(s), Double Vanity, Cathedral Ceiling(s), His And Hers Closets, High Ceilings 9 Ft Main
: Main Level, Laundry Room, Mud Room, Sink
: Front Yard, Level, Back Yard, Landscaped, Private
: Attached, Garage, Garage Door Opener, Garage Faces Side, Kitchen Level
: Composition
: Split Bedroom Plan
: Separate Dining Room
: Double Vanity, Shower Only
: Fire Alarm, Security System Owned, Smoke Detector(s), Carbon Monoxide Detector(s)
: Public Sewer
: No
: Cable Available, Electricity Available, Phone Available, Water Available, Natural Gas Available, Sewer Available
: No
Location Details
US
GA
Fulton - GA
Sandy Springs
30328
140 River Court Parkway
0
W85° 36' 32.9''
N33° 56' 58.8''
Abernathy to Brandon Mill at the corner of the Abernathy Greenway to left on River Court Parkway in Riverside Estates
Additional Details
Atlanta Fine Homes Sotheby's International
: Traditional, Cape Cod
: Cedar, Frame, Stone
Spalding Drive
Sandy Springs
North Springs
: No
: One And One Half
: Irrigation Equipment
: Gazebo
: Resale
: County Road
: No
$7,757
2022
: Public
17 012700020331
$905,000
$850,000

140 River Court Parkway

140 River Court Parkway, Sandy Springs, Georgia 30328

5 Bedrooms
4 Bathrooms
4,408 Sqft
$905,000
Listing ID #7258519
Basic Details
Property Type : Residential
Listing Type : Sold
Listing ID : 7258519
Price : $905,000
Bedrooms : 5
Bathrooms : 4
Half Bathrooms : 1
Square Footage : 4,408 Sqft
Year Built : 1970
Lot Area : 0.74 Acre
Status : Closed
Property SubType : Single Family Residence
CloseDate : 09/07/2023
Agent info
Marci Robinson
Hirsh Real Estate- SandySprings.com
Contact Agent