Listing courtesy of EXP Realty, LLC.

Property Description

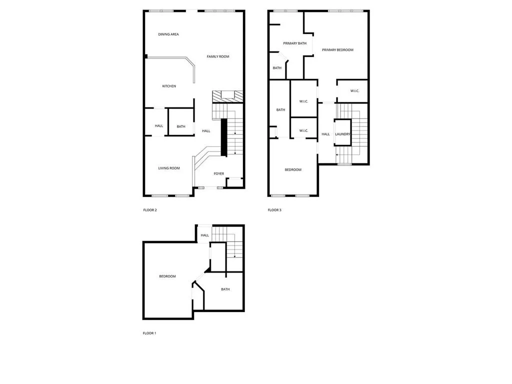
Beautifully Maintained 3-Story Townhome, perfect inside the perimeter location. All of this just minutes from Northside Hospital, top-rated schools, shopping, dining, and major commuter routes. Welcome to this stunning, move-in ready 3 bedroom, 3.5 bathroom townhome offering the perfect blend of comfort, style, and convenience. Step inside to an inviting open-concept floor plan with soaring 10’+ ceilings on the main level and freshly refinished hardwood floors. The spacious family room with fireplace and automatic blinds (Installed in Jan. 2025), flows seamlessly into the kitchen, keeping room, and dining area—ideal for both entertaining and everyday living. The chef’s kitchen boasts a gas cooktop, granite countertops, white cabinetry, tile backsplash, stainless steel appliances, including the refrigerator, a built-in microwave/oven, and a butler’s pantry for added storage and entertaining. Upstairs, you’ll find a generously sized secondary bedroom and a luxurious primary suite featuring double vanities with granite countertops, a separate jetted tub, a spacious tile surround shower, and his and hers walk-in closets. The finished basement level offers a versatile bonus room and a full bathroom with shower—perfect for guests, a home office, or media space. Recent updates include, the upstairs furnace replaced on 04/2023 and the downstairs furnace and AC unit replaced on 05/2024. Both furnaces are upgraded units, with two-stage, variable speed furnaces. Additional highlights include a two-car garage with Tesla electric charger, and a private deck, just replaced last year, perfect for cozy evenings. The community amenities are second to none, featuring a clubhouse, business center, meeting room, fitness center, and pool. This home truly has it all—don’t miss your chance to call it yours!

Features
: No
: Forced Air
: Central Air, Ceiling Fan(s)
: Finished, Finished Bath, Interior Entry
: No
: Other, Neighborhood
: Deck
: No
: Dishwasher, Disposal, Gas Cooktop
: Gated, Homeowners Assoc, Street Lights, Business Center, Fitness Center, Near Schools, Near Shopping, Pool, Clubhouse, Near Public Transport
: Other, 110 Volts
: No
: Factory Built, Family Room
1
: Hardwood, Ceramic Tile, Carpet
2
: Entrance Foyer, High Ceilings 10 Ft Main, Walk-in Closet(s), Double Vanity, Crown Molding
: Upper Level, In Hall
: Other
: Driveway, Attached, Garage
: Composition
: Other, Roommate Floor Plan
: Separate Dining Room, Butlers Pantry
: Double Vanity, Separate Tub/shower, Whirlpool Tub
: Smoke Detector(s), Security Gate
: Public Sewer
: No
: Cable Available, Electricity Available, Phone Available, Water Available, Natural Gas Available, Sewer Available
: No
Location Details
US
GA
Fulton - GA
Atlanta
30342
5434 Glenridge View
0
W85° 39' 4.8''
N33° 54' 10.3''
Use GPS for Best Directions.
Additional Details
EXP Realty, LLC.
: Traditional, Townhouse
$474
Monthly
: Insurance, Maintenance Structure, Reserve Fund, Security, Maintenance Grounds, Swim
: Brick 3 Sides, Stone
High Point
Ridgeview Charter
Riverwood International Charter
: No
: Three Or More
: Cash, Conventional, Fha, Va Loan
: No
: No
: Resale
: Private Road
$5,273
2024
: Public
17 0016 LL2722
$0
$565,000

5434 Glenridge View

5434 Glenridge View, Atlanta, Georgia 30342

3 Bedrooms
3 Bathrooms
2,042 Sqft
$565,000
Listing ID #7656097
Basic Details
Property Type : Residential
Listing Type : For Sale
Listing ID : 7656097
Price : $565,000
Bedrooms : 3
Bathrooms : 3
Half Bathrooms : 1
Square Footage : 2,042 Sqft
Year Built : 2005
Lot Area : 0.02 Acre
Status : Active Under Contract
Property SubType : Townhouse
Agent info
Marci Robinson
Hirsh Real Estate- SandySprings.com
Contact Agent